物件概要
| 物件種別 | 分譲マンション | 問い合わせ番号 | |
|---|---|---|---|
| 物件名 | 日神パレステージ西巣鴨 | 現況 | 《空室/即入居可》 |
| 所在地 | 豊島区巣鴨5-16-9 | ||
| 交通 | 三田線『西巣鴨』駅 徒歩5分 , 山手線『巣鴨』駅 徒歩13分 , 都電荒川線『新庚申塚』駅 徒歩2分 | ||
| 賃料 | 96,000円 | 共益費/管理費 | 8,000円 |
| 敷金 | 1ヶ月 | 礼金 | 1ヶ月 |
| 保険 | 火災保険:20,000円(2年間) | 保証会社 | 利用可 |
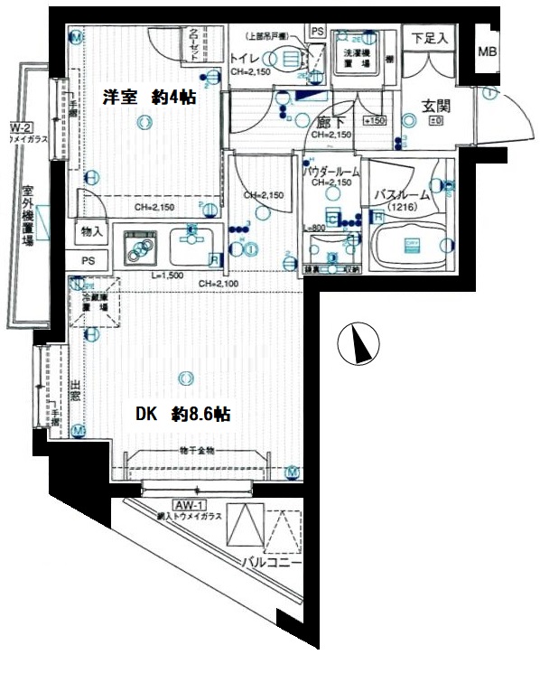
| 間取り | 1DK | 築年月 | 平成18年3月 |
| 方角 | 南 | 貸借種別 | 普通借家 |
| 建物階建 | 地上13階建 | エレベータ | あり |
| 建物構造 | RC | 専有面積 | 32.34m2 |
| 設備 | ◆外観タイル貼り◆オートロック◆モニター付インターホン◆エアコン・給湯◆フローリング◆システムキッチン◆IHクッキングヒーター◆バス・トイレ別◆追焚付オートバス◆浴室換気乾燥機◆エレベーター◆バルコニー◆宅配ボックス | ||