物件概要
| 物件種別 | 分譲マンション | 問い合わせ番号 | |
|---|---|---|---|
| 物件名 | ワイズユウラク熊谷パテラ | 現況 | 《空室/即入居可》 |
| 所在地 | 埼玉県熊谷市末広1-8-1 | ||
| 交通 | 高崎線『熊谷』駅 徒歩10分 | ||
| 賃料 | 49,000円 | 共益費/管理費 | 6,000円 |
| 敷金 | 1ヶ月 | 礼金 | 1ヶ月 |
| 保険 | 火災保険:20,000円(2年間) | 保証会社 | 利用可 |
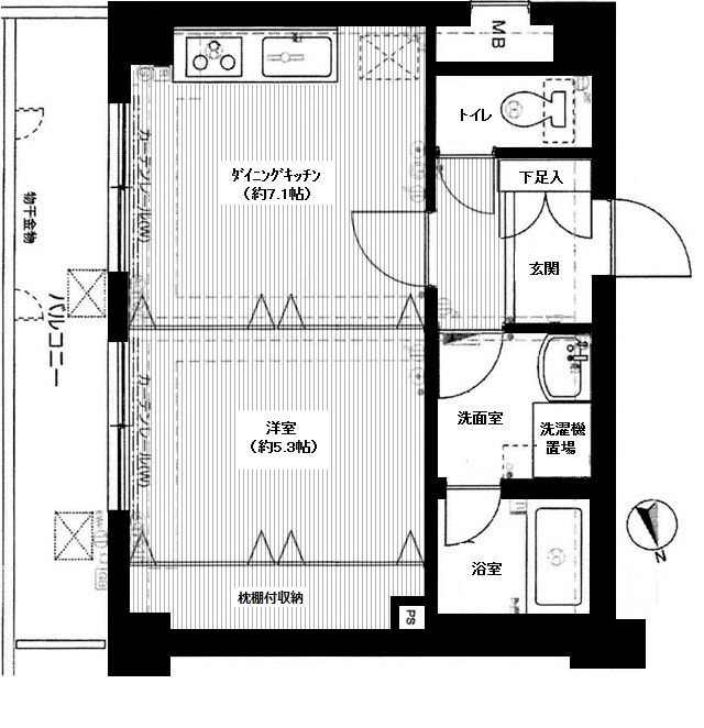
| 間取り | 1DK | 築年月 | 平成14年4月 |
| 方角 | 東 | 貸借種別 | 普通借家 |
| 建物階建 | 地上7階建 | エレベータ | あり |
| 建物構造 | RC | 専有面積 | 36.04m2 |
| 設備 | ◆外観タイル貼り◆モニター付オートロック◆エアコン・給湯◆フローリング◆システムキッチン◆バス・トイレ別◆追焚付オートバス◆ウォシュレット◆浴室換気乾燥機◆収納あり◆エレベーター◆バルコニー◆宅配ボックス | ||