物件概要
| 物件種別 | 分譲マンション | 問い合わせ番号 | |
|---|---|---|---|
| 物件名 | オリゾンマーレ | 現況 | 《空室/即入居可》 |
| 所在地 | 江東区有明1-3-14 | ||
| 交通 | ゆりかもめ『有明テニスの森』駅 徒歩3分 , りんかい線『国際展示場』駅 徒歩9分 | ||
| 賃料 | 184,000円 | 共益費/管理費 | 12,000円 |
| 敷金 | 1ヶ月 | 礼金 | 1ヶ月 |
| 保険 | 火災保険:20,000円(2年間) | 保証会社 | 利用可 |
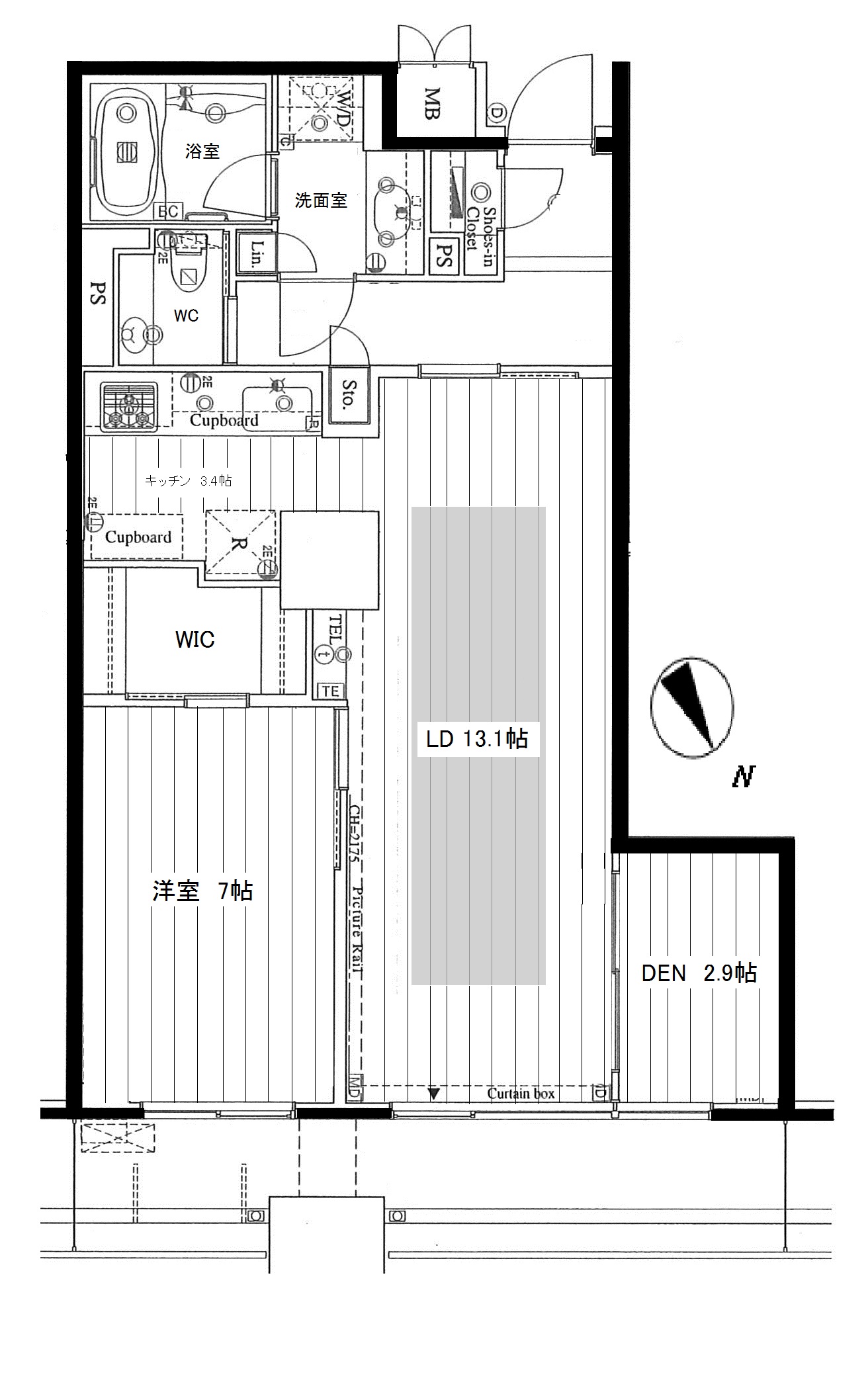
| 間取り | 1LDK+DEN+WIC | 築年月 | 平成16年10月 |
| 方角 | 北東 | 貸借種別 | 普通借家 |
| 建物階建 | 地下1階付 地上27階建 | エレベータ | あり |
| 建物構造 | RC | 専有面積 | 63.22m2 |
| 設備 | ◆オートロック◆モニター付インターホン◆エアコン・給湯◆システムキッチン◆ディスポーザー◆床暖房◆バス・トイレ別◆追焚付オートバス◆ウォークインクローゼット◆エレベーター◆バルコニー | ||