物件概要
| 物件種別 | 分譲マンション | 問い合わせ番号 | |
|---|---|---|---|
| 物件名 | アクシア等々力 | 現況 | 《空室/即入居可》 |
| 所在地 | 世田谷区中町2-6-18 | ||
| 交通 | 大井町線『等々力』駅 徒歩6分 | ||
| 賃料 | 135,000円 | 共益費/管理費 | 9,000円 |
| 敷金 | 1ヶ月 | 礼金 | 1ヶ月 |
| 保険 | 火災保険:20,000円(2年間) | 保証会社 | 利用可 |
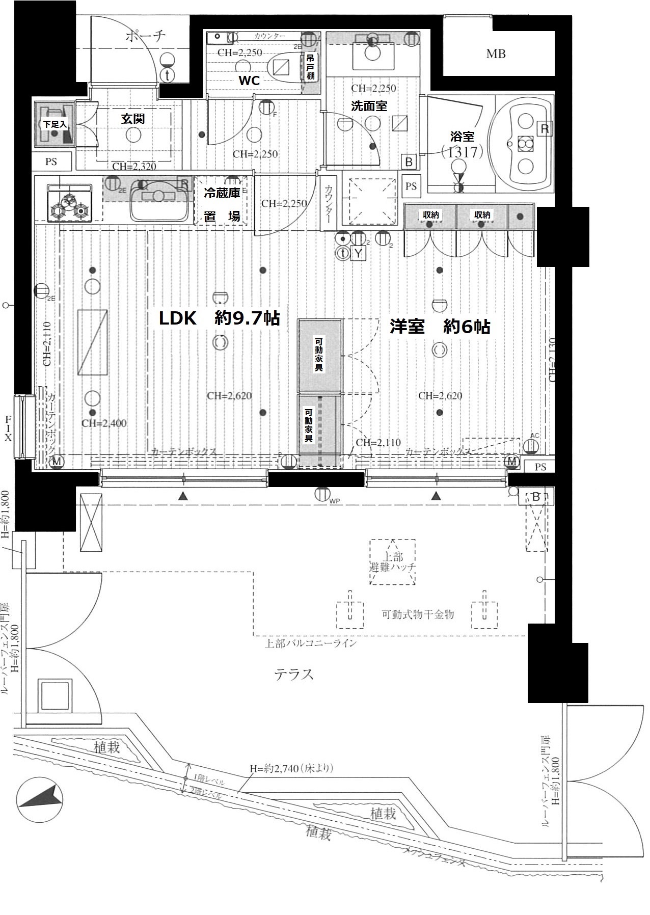
| 間取り | 1LDK | 築年月 | 平成19年3月 |
| 方角 | 西 | 貸借種別 | 普通借家 |
| 建物階建 | 地下1階付 地上3階建 | エレベータ | あり |
| 建物構造 | RC | 専有面積 | 40.10m2 |
| 設備 | ◆外観タイル貼り◆モニター付オートロック◆エアコン・給湯◆フローリング◆床暖房◆システムキッチン◆ガスキッチン◆追焚付オートバス◆浴室換気乾燥機◆ウォシュレット◆エレベーター◆宅配ボックス | ||
◆テラス 30.53㎡
駐車(機械式)25,000円
バイク 1,500円