物件概要
| 物件種別 | 分譲マンション | 問い合わせ番号 | |
|---|---|---|---|
| 物件名 | セジョリ上野 | 現況 | 《空室/即入居可》 |
| 所在地 | 台東区下谷1-1-10 | ||
| 交通 | 山手線『上野』駅 徒歩7分 | ||
| 賃料 | 124,000円 | 共益費/管理費 | 12,000円 |
| 敷金 | 1ヶ月 | 礼金 | 1ヶ月 |
| 保険 | 火災保険:20,000円(2年間) | 保証会社 | 利用可 |
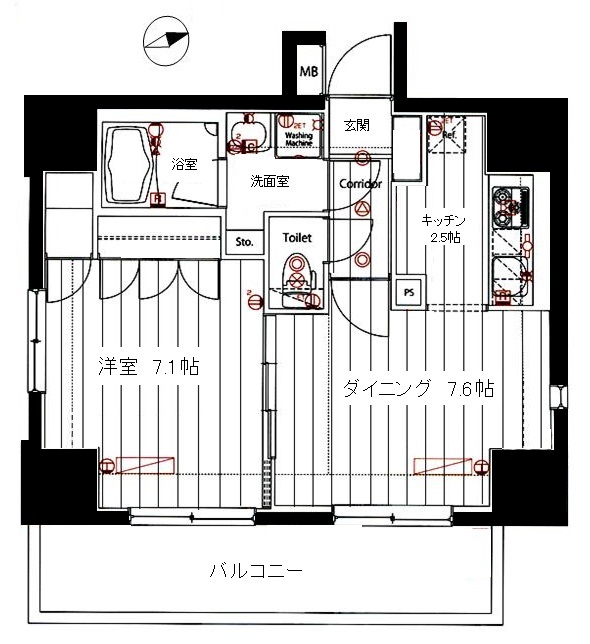
| 間取り | 1DK | 築年月 | 平成23年7月 |
| 方角 | 東 | 貸借種別 | 普通借家 |
| 建物階建 | 地上14階建 | エレベータ | あり |
| 建物構造 | SRC | 専有面積 | 42.21m2 |
| 設備 | ◆外観タイル貼り◆オートロック◆モニター付インターホン◆エアコン・給湯◆システムキッチン◆3口ガスコンロ◆フローリング◆バス・トイレ別◆浴室換気乾燥機◆独立洗面台◆収納あり◆エレベーター◆バルコニー | ||
バイク置場 月額9,000円